Giải vở bài tập Toán 5 bài 29: Luyện tập chung chương 1 Giải vở bài tập Toán lớp 5 tập 1
GiaiToan xin giới thiệu tới các em Giải vở bài tập Toán 5 bài 29: Luyện tập chung chương 1 tập 1 trang 39, 40. Hướng dẫn các em trả lời câu hỏi trong bài chi tiết, ngắn gọn giúp các em học sinh ôn tập, hệ thống lại toàn bộ kiến thức Chương 1 lớp 5 về phân số, giải Toán liên quan đến tỉ lệ, bảng đơn vị đo diện tích. Dưới đây là nội dung chi tiết, các em tham khảo nhé
Vở bài tập toán lớp 5 bài 29
Vở bài tập Toán lớp 5 tập 1 trang 38 Câu 1
Người ta lát sàn một căn phòng hình vuông có cạnh 8m bằng những mảnh gỗ hình chữ nhật có chiều dài 80cm, chiều rộng 20cm. Hỏi cần bao nhiêu mảnh gỗ để lát kín căn phòng đó?
Phương pháp giải
- Tính diện tích căn phòng = cạnh × cạnh.
- Tính diện tích mảnh gỗ = chiều dài × chiều rộng.
- Tính số mảnh gỗ cần dùng = diện tích căn phòng : diện tích mảnh gỗ (cùng một đơn vị đo).
Đáp án và hướng dẫn giải
Diện tích căn phòng là:
8 x 8 = 64 (m2)
64m2 = 640 000 cm2
Diện tích một mảnh gỗ
80 x 20 = 1600 (cm2)
Số mảnh gỗ dùng để lát sàn căn phòng đó là:
640 000 : 1600 = 400 (mảnh)
Đáp số: 400 mảnh gỗ
Vở bài tập Toán lớp 5 tập 1 trang 39 Câu 2
Người ta trồng mía trên môt khu đất hình chữ nhật có chiều rộng 130m, chiều dài hơn chiều rộng 70m.
a) Tính diện tích khu đất đó
b) Biết rằng, trung bình cứ 100m2 thu hoạch được 300kg mía. Hỏi trên cả khu đất đó người ta thu hoạch được bao nhiêu tấn mía?
Phương pháp giải
- Tính chiều dài = chiều rộng + 130m.
- Tính diện tích = chiều dài × chiều rộng.
- Tính diện tích gấp 100m2 bao nhiêu lần.
- Tính số thóc thu được = 300kg × số lần diện tích gấp 100m2.
- Đổi số đo vừa tìm được sang đơn vị đo là tấn, lưu ý rằng 1 tấn = 1000kg.
Đáp án và hướng dẫn giải
a) Chiều dài khu đất là:
130 + 70 = 200 (m)
Diện tích khu đất là:
200 x 130 = 26 000 (m2)
b) 100m2 thu hoạch được 300kg mía
Vậy 26000m2 thì thu hoạch được số ki-lô-gam mía trên khu đất đó:
= 78000(kg)
78 000kg = 78 tấn
Đáp số: a) 26 000 m2
b) 78 tấn mía
Vở bài tập Toán lớp 5 tập 1 trang 39 Câu 3
Một sân vận động hình chữ nhật được vẽ theo tỉ lệ và kích thước như hình bên.
Hỏi diện tích sân vận động đó bằng bao nhiêu mét vuông?

Phương pháp giải
- Tính chiều dài thực tế = chiều dài trên bản đồ × 3000, sau đó đổi sang đơn vị mét.
- Tính chiều rộng thực tế = chiều rộng trên bản đồ × 3000, sau đó đổi sang đơn vị mét.
- Diện tích thực tế = chiều dài thực tế × chiều rộng thực tế.
Đáp án và hướng dẫn giải
Chiều dài sân vận động là:
6 x 3000 = 18 000 (cm) = 180m
Chiều rộng sân vận động là:
3 x 3000 = 9000 (cm) = 90m
Diện tích sân vận động là:
180 x 90 = 16200 (m2)
Đáp số: 16200 m2
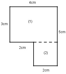
Vở bài tập Toán lớp 5 tập 1 trang 40 Câu 4
Khoanh vào chữ đặt trước câu trả lời đúng.

Diện tích hình bên là:
A. 20cm2
B. 12cm2
C. 16cm2
D. 10cm2
Phương pháp giải
Chia hình đã cho thành các hình chữ nhật hoặc hình vuông rồi tính diện tích các hình đó.
Diện tích hình đã cho bằng tổng diện tích các hình nhỏ.
Đáp án và hướng dẫn giải
Ta có thể chia thành các hình nhỏ như sau:
Cách 1:

Diện tích hình vẽ = Diện tích hình (1) + diện tích hình (2) = 4 x 3 + 2 x 2 = 16cm2
Cách 2:

Diện tích hình vẽ = Diện tích hình (1) + diện tích hình (2) = 3 x 2 + 5 x 2 = 16cm2
Cách 3:

Diện tích hình vẽ = Diện tích hình (1) + diện tích hình (2) + diện tích hình 3 = 3 x 2 + 3 x 2 + 2 x 2 = 16cm2
Vậy khoanh tròn vào câu trả lời đúng C.
Tham khảo lời giải SGK tương ứng:
>> Bài tiếp theo: Toán lớp 5 trang 31, 32: Luyện tập chung chương 1
- Vở bài tập Toán lớp 5 bài 22: Ôn tập - Bảng đơn vị đo khối lượng
- Vở bài tập Toán lớp 5 bài 23: Luyện tập
- Vở bài tập Toán lớp 5 bài 24: Đề-ca-mét vuông. Héc-tô-mét vuông
- Vở bài tập Toán lớp 5 bài 25: Mi-li-mét vuông. Bảng đơn vị đo diện tích
- Vở bài tập Toán lớp 5 bài 26: Luyện tập
- Vở bài tập Toán lớp 5 bài 27: Héc-ta
Giải vở bài tập Toán 5 bài 29: Luyện tập chung chương 1 được GiaiToan chia sẻ trên đây. Hy vọng với tài liệu này sẽ giúp ích cho các em có thêm tài liệu tham khảo, qua đó nắm được cách giải các dạng Toán về dộ dài, khối lượng nắm được bảng đơn vị đo khối lượng, độ dài để giải các bài toán quy đổi khối lượng, độ dài, các dạng toán có lời văn, hệ thống lại các kiến thức Toán 5 chương 1. Chúc các em học tốt, ngoài ra các em có thể tham khảo thêm Toán lớp 5, Lý Thuyết Toán Lớp 5, Luyện Tập Toán Lớp 5, Bài Tập Cuối Tuần Lớp 5 để cùng tìm hiểu thêm các dạng bài toán khác nhau nhé
Link Download chính thức:
Giải vở bài tập Toán 5 bài 29: Luyện tập chung chương 1 DownloadCác phiên bản khác và liên quan:
Xem thêm bài viết khác

Giải vở bài tập Toán 5 bài 54: Luyện tập chung

Vở bài tập Toán lớp 5 bài 53: Luyện tập Trừ hai số thập phân

Giải vở bài tập Toán 5 bài 52: Trừ hai số thập phân

Vở bài tập Toán lớp 5 bài 51: Luyện tập Tổng nhiều số thập phân

Vở bài tập Toán lớp 5 bài 50: Tổng nhiều số thập phân

Vở bài tập Toán lớp 5 bài 48: Cộng hai số thập phân

Vở bài tập Toán lớp 5 bài 46: Luyện tập chung

Vở bài tập Toán lớp 5 bài 45: Luyện tập chung

Vở bài tập Toán lớp 5 bài 44: Luyện tập chung

Vở bài tập Toán lớp 5 bài 42: Viết các số đo khối lượng dưới dạng số thập phân

Giải vở bài tập Toán 5 bài 41: Luyện tập

Vở bài tập Toán lớp 5 bài 40: Viết các số đo độ dài dưới dạng số thập phân

Vở bài tập Toán lớp 5 bài 39: Luyện tập chung

Vở bài tập Toán lớp 5 bài 21: Ôn tập - Bảng đơn vị đo độ dài

Vở bài tập Toán lớp 5 bài 20: Luyện tập chung

Vở bài tập Toán lớp 5 bài 19: Luyện tập Ôn tập và bổ sung về giải Toán (tiếp theo)

Vở bài tập Toán lớp 5 bài 18: Ôn tập và bổ sung về giải Toán (tiếp theo)

Giải vở bài tập Toán 5 bài 16: Ôn tập và bổ sung về giải Toán

Vở bài tập Toán lớp 5 bài 15: Ôn tập về giải Toán

Vở bài tập Toán lớp 5 bài 14: Luyện tập chung




















