Bài 2 trang 75 SBT Toán lớp 6 - CTST Giải sách bài tập Toán 6
Bài 2 trang 75 SBT Toán lớp 6 tập 1 - Chân trời sáng tạo được GiaiToan biên soạn và đăng tải. Tài liệu hướng dẫn giải câu 2 nằm trong Bài 3: Chu vi và diện tích một số hình trong thực tiễn, với cách giải nhanh và dễ hiểu nhất. Hi vọng, thông qua đó học sinh được củng cố kiến thức và nắm bài học tốt hơn. Dưới đây là nội dung chi tiết của bài, các em tham khảo nhé.
Bài 2 trang 75 SBT Toán lớp 6
Giải bài 2 trang 75 sách bài tập Toán lớp 6
Đề bài:
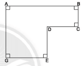
Tính chu vi và diện tích của hình bên, biết AB = 7 cm, BC = 2 cm, CD = 3 cm và DE = 3 cm

Lời giải:
Dựa vào hình vẽ, ta có:
GE = AB - CD = 7 - 3 = 4 (cm)
AG = BC + DE = 2 + 3 = 5 (cm)
Chu vi của hình là:
P = AB + BC + CD + DE + EG + GA = 7 + 2 + 3 + 3 + 4 + 5 = 24 (cm)
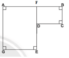
Phân chia thành 2 hình chữ nhật

Diện tích hình chữ nhật AFEG có chiều rộng là GE = 4cm, AG = 5cm là:
4.5 = 20 (cm2).
Diện tích hình chữ nhật FBCD có chiều rộng là BC = 2cm, CD = 3cm là:
2.3 = 6 (cm2).
Khi đó ta có diện tích của hình đã cho bằng diện tích hình chữ nhật AFEG cộng với diện tích hình chữ nhật FBCD bằng:
S = 20 + 6 = 26 (cm2).
>>> Câu hỏi cùng bài
- Bài 1 trang 75 SBT Toán lớp 6 - CTST
- Bài 3 trang 75 SBT Toán lớp 6 - CTST
- Bài 4 trang 75 SBT Toán lớp 6 - CTST
- Bài 5 trang 76 SBT Toán lớp 6 - CTST
- Bài 6 trang 76 SBT Toán lớp 6 - CTST
>>> Bài tiếp theo: Giải SBT Toán 6: Ôn tập cuối chương 3 - CTST
>>> Bài trước: Giải SBT Toán 6 Bài 2: Hình thoi - Hình chữ nhật - Hình bình hành - Hình thang cân - CTST
Bài 2 trang 75 SBT Toán lớp 6 - CTST được GiaiToan chia sẻ trên đây. Hy vọng với hướng dẫn giải bài tập chi tiết này, các em sẽ nắm được nội dung của bài tập, từ đó biết cách giải các dạng bài tập Chương 3: Hình học trực quan. Các hình phẳng trong thực tiễn. Ngoài ra, để các em học tốt môn Toán, mời các em tham khảo thêm một số tài liệu liên quan: Toán lớp 6, Luyện Tập Toán 6 CTST, Giải Toán 6 Tập 1 CTST được GiaiToan biên soạn để ôn tập nhé.
- Lượt xem: 56