Thực hành 3 trang 56 Toán 7 tập 1 SGK Chân trời sáng tạo Giải Toán 7
Thực hành 3 trang 56 SGK Toán 7
Toán lớp 7 Thực hành 3 trang 56 là lời giải bài Hình lăng trụ đứng tam giác, Hình lăng trụ tứ giác SGK Toán 7 sách Chân trời sáng tạo hướng dẫn chi tiết lời giải giúp cho các em học sinh tham khảo, ôn tập, củng cố kỹ năng giải Toán 7. Mời các em học sinh cùng tham khảo chi tiết.
Giải Thực hành 3 Toán 7 SGK trang 56
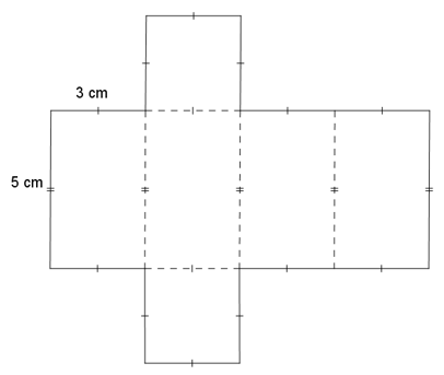
| Thực hành 3 (SGK trang 56): Tạo lập hình lăng trụ đứng có đáy là hình vuông cạnh 3cm và chiều cao 5cm. |
Hướng dẫn giải
- Lăng trụ đứng tứ giác có 6 mặt, 12 cạnh và 8 đỉnh
- Đặc điểm của lăng trụ đứng tứ giác:
+ Hai mặt đáy cùng là tứ giác và song song với nhau
+ Các cạnh bên bằng nhau
+ Chiều cao của hình lăng trụ đứng tứ giác là độ dài một cạnh bên.
Lời giải chi tiết
Tạo lập hình lăng trụ đứng có đáy là hình vuông cạnh 3 cm và chiều cao 5 cm như sau:
- Vẽ bốn hình chữ nhật với kích thước như hình vẽ sau.

- Cắt miếng bìa như hình vẽ rồi gấp theo đường nét đứt, ta được hình lăng trụ đứng có đáy là hình vuông (như hình vẽ).

----> Câu hỏi tiếp theo: Vận dụng 2 trang 56 SGK Toán 7
----> Bài liên quan: Giải Toán 7 Bài 3 Hình lăng trụ đứng tam giác, Hình lăng trụ tứ giác
----------------------------------------
Trên đây là lời giải chi tiết Thực hành 3 Toán lớp 7 trang 56 Hình lăng trụ đứng tam giác, Hình lăng trụ tứ giác cho các em học sinh tham khảo, nắm được cách giải các dạng toán của Chương 3: Các hình khối trong thực tiễn. Qua đó giúp các em học sinh ôn tập chuẩn bị cho các bài thi giữa và cuối học kì lớp 7. Chúc các em học tốt.
Ngoài ra Giaitoan mời thầy cô và học sinh tham khảo thêm một số tài liệu liên quan: Luyện tập Toán 7, Đề thi giữa học kì 1 Toán 7, Đề thi học kì 1 Toán 7, ....
- Lượt xem: 4.123
